Oulun keskustakirjasto Saari
Keskustakirjasto Saari sijaitsee Oulun sydämessä, Vänmanninsaaressa, Oulujoen varrella. Vuonna 1981 valmistuneen kirjaston ovat suunnitelleet arkkitehdit Marjatta ja Martti Jaatinen, kirjaston vieressä on Jaatisten suunnittelema kaupunginteatteri vuodelta 1972. Rakennukset ovat osa valtakunnallisesti merkittävää rakennettua kulttuuriympäristöä (RKY) ja edustavat niukkaa modernia betonirationalismia. Kokonaisuus perustuu 1960-luvulla järjestettyyn yleiseen suunnittelukilpailuun Oulun hallinto- ja kulttuurikeskuksesta.
JKMM Arkkitehdit on vastannut hankkeen pää-, arkkitehti- ja sisustus- ja irtokalustesuunnittelusta. Tilaajana on Oulun Tilapalvelut -liikelaitos, ja käyttäjinä toimivat Oulun kaupunginkirjasto, lastenkulttuurikeskus Kotilo sekä kaupungin yhteisöpalvelut. Suunnittelun lähtökohtana on ollut rakennuksen modernistisen betoniarkkitehtuurin kunnioittaminen ja sen alkuperäisen hengen säilyttäminen, samalla kun tilat, talotekniikka ja esteettömyys on päivitetty vastaamaan paremmin nykyisiä tarpeita.
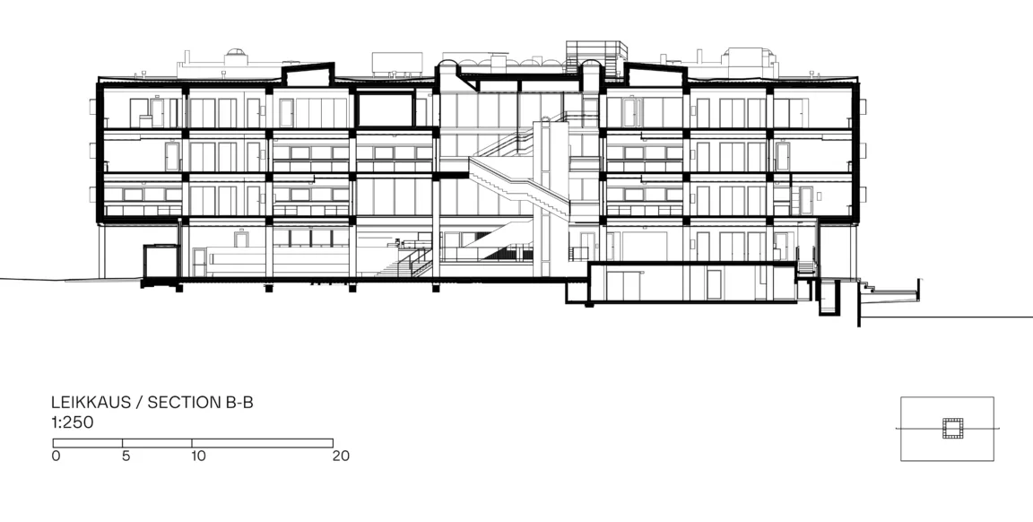
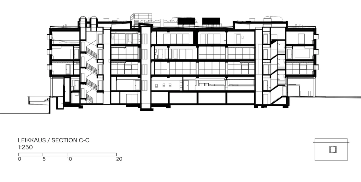
Arkkitehtonisesti rakennus on selkeä suorakaide, jonka julkisivuissa vuorottelevat mosaiikkibetoni, alumiini ja lasi. Toisen kerroksen korkea kirjastosali avautuu suuren ikkunan kautta kohti torialuetta, ja ensimmäinen kerros on sisäänvedetty. Rakennuksen 6×6 metrin moduulijako mahdollistaa joustavan tilajaon sisätiloissa. Sisätiloissa korostuvat avoimuus, läpinäkyvyys ja tarkoin valitut materiaalit. Rakennussuojelun kannalta keskeisiä tiloja ovat sisääntuloaula ja veistoksellinen betoninen pääporras, sekä toisen kerroksen korkea kirjastosali. Pääporrasta ympäröivien lasiseinien kautta avautuu näkymiä kerrosten ja toimintojen välillä.
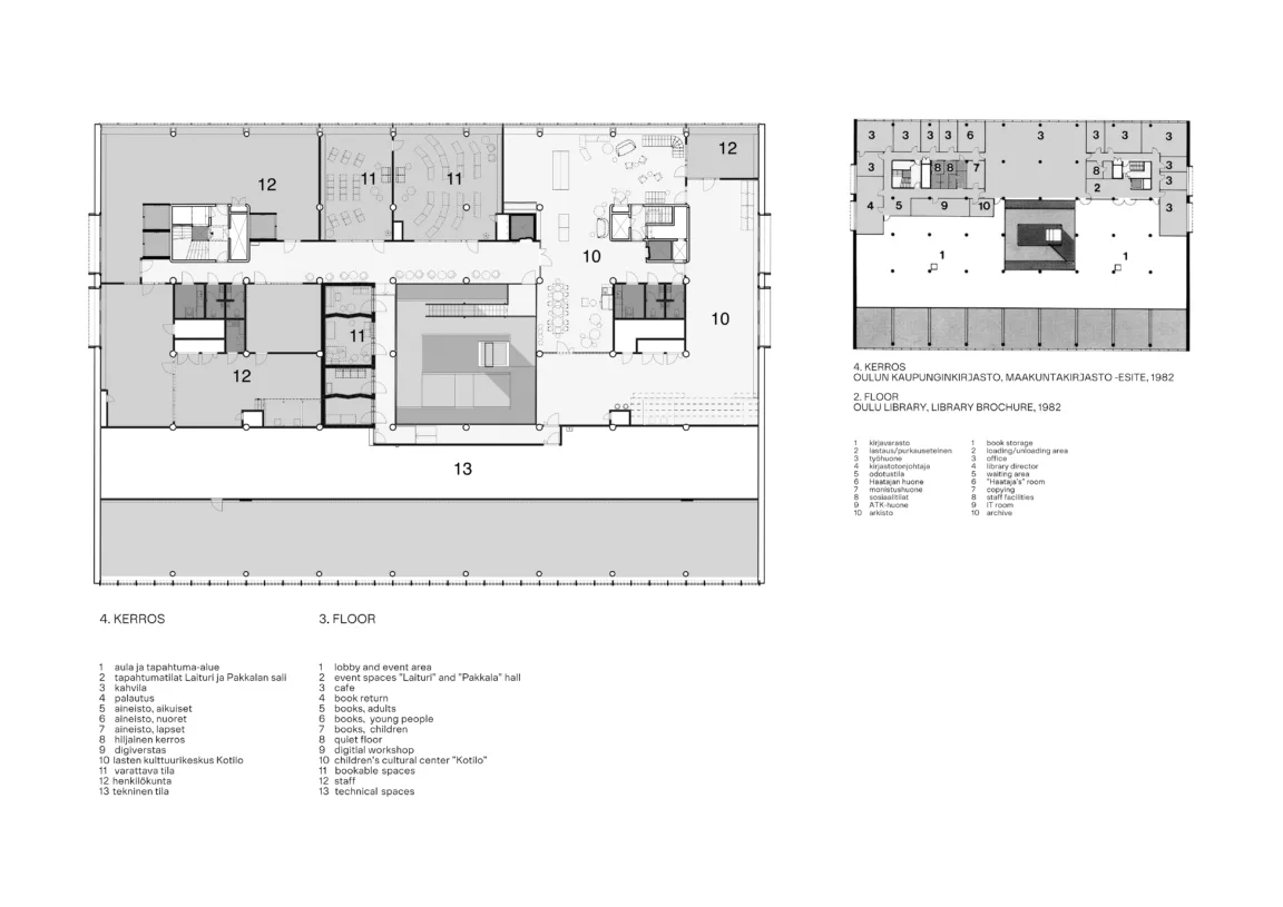
Uudistetussa keskustakirjastossa rakennuksen neljäs kerros on otettu yleisökäyttöön, ja sinne on rakennettu uusi porrasyhteys pääportaan ylimmältä tasanteelta. Taloon on rakennettu uusi hissi, ja vanhat hissit uudistettu yleisökäyttöön. Tilojen esteettömyyttä on parannettu ja wc-tiloja on lisätty kerroksiin. Suurin muutos ja haaste on ollut tekniikan uusiminen: teknisiä tiloja on rakennettu lisää, reititystä uudistettu, järjestelmien periaatteita muutettu. Tilaa on ollut rajoitetusti, tekniikkaa paljon!
Kirjaston uudistettu katutaso toimii tapahtumien ja kohtaamisten kerroksena, jossa sijaitsevat kahvila sekä toisiinsa avautuvat tapahtumatilat Pakkalan sali ja Laituri. Toinen kerros on kirjaston sydän: avoin ja valossa kylpevä kirjastosali, jossa on runsaasti aineistoa eri-ikäisille asiakkaille. Kolmas kerros tarjoaa tiloja rauhallisempaan työskentelyyn, kuten ryhmätyötiloja, lukusaleja ja digiverstaan. Neljäs kerros, joka on nyt ensimmäistä kertaa avattu yleisölle, kokoaa lastenkulttuurikeskus Kotilon, varattavia kokoustiloja, pieniä äänieristettyjä studioita sekä henkilöstön työtilat.
JKMM Arkkitehdit vastasi myös kirjaston sisustussuunnittelusta, jossa noudatettiin alkuperäisen arkkitehtuurin ja Studio Nurmesniemen kalustuksen periaatteita. Alkuperäisessä materiaalipaletissa yhdistyvät komeat paikallavaletut betonipinnat, mosaiikkibetoni, alumiini, lasi. Kovia pintoja pehmentävät lämpimät saarnipinnat ja värikkäät kalusteet. Näkymien vaihtelevuus, tilasarjat ja luonnonvalo ovat yhä tilakokemuksen keskeisiä elementtejä. Toisen kerroksen kirjastosalista avautuvat näkymät Torinrantaan ja uuteen Urho Kähkösen kasvitaideteokseen “Sininen saari”, joka tuo vuodenkierron vaihtelua ja elävyyttä rakennuksen edustalle.
Uudistettu kirjasto avattiin yleisölle marraskuussa 2025.
Alkuperäissuunnitelma: Arkkitehtitoimisto Marjatta ja Martti Jaatinen, valmistunut 1981, avattu yleisölle 1982
Alkuperäinen sisustus: Studio Nurmesniemi Oy
Suojelu: Kuuluu Oulun rantakortteleiden julkisen kaupunkitilan RKY-alueeseen
Museoviranomainen: Pohjois-Pohjanmaan museo
Lähtötilanne: Rakennuksessa tehty pieniä muutoksia 2013, muuten rakennus oli melko alkuperäisessä asussa.
Rakennustoimenpide: Perusparannus ja restaurointi
Korjaustarve: Talotekniikan uusiminen sekä tilamuutokset, kirjaston toiminnallisuuden parantaminen ja nykyaikaistaminen, seka esteettömyyden parantaminen.
Korjauksen tavoitteet: Rakennuksen kokonaisarkkitehtuurin säilyttäminen ja suojelun huomioiminen erityisesti päätiloissa. Talotekniikan uusiminen ja sen toimintaperiaatteen muuttaminen, energiatehokkuuden parantaminen, esteettömyyden kehittäminen sekä betonirakenteiden vaurioitumisen pysäyttäminen





























