Pohjoisesplanadi 37
Liike- ja toimistorakennus
Osana mittavaa korjaushanketta suunnittelemme uutta kaupunkitilaa Helsingin ytimessä, osoitteessa Pohjoisesplanadi 37. Yli 180-vuotiaan arvokiinteistön historiallinen sisäpiha katetaan lasikatolla, mikä luo viihtyisää sisätilaa vanhan korttelin suojiin.
Pohjoisesplanadi 37 on kulttuurihistoriallisesti merkittävä rakennus, joka kuuluu Museoviraston määrittämään valtakunnallisesti arvokkaaseen rakennettuun kulttuuriympäristöön (RKY) Esplanadi-Bulevardi Helsingin keskustassa. Rakennuksen vanhimman osan suunnitteli Carl Ludvig Engelin poika, Carl Alexander Engel, ja kaksikerroksinen empirerakennus valmistui vuonna 1839. Sen vaiheikas historia heijastuu nykyisessä seitsemänkerroksisessa toimisto- ja liikekiinteistössä, jonka kerrostumat muodostavat vankan pohjan rakennuksen historiaa kunnioittavalle ja tulevaisuuteen suuntautuvalle jatkokehitykselle.
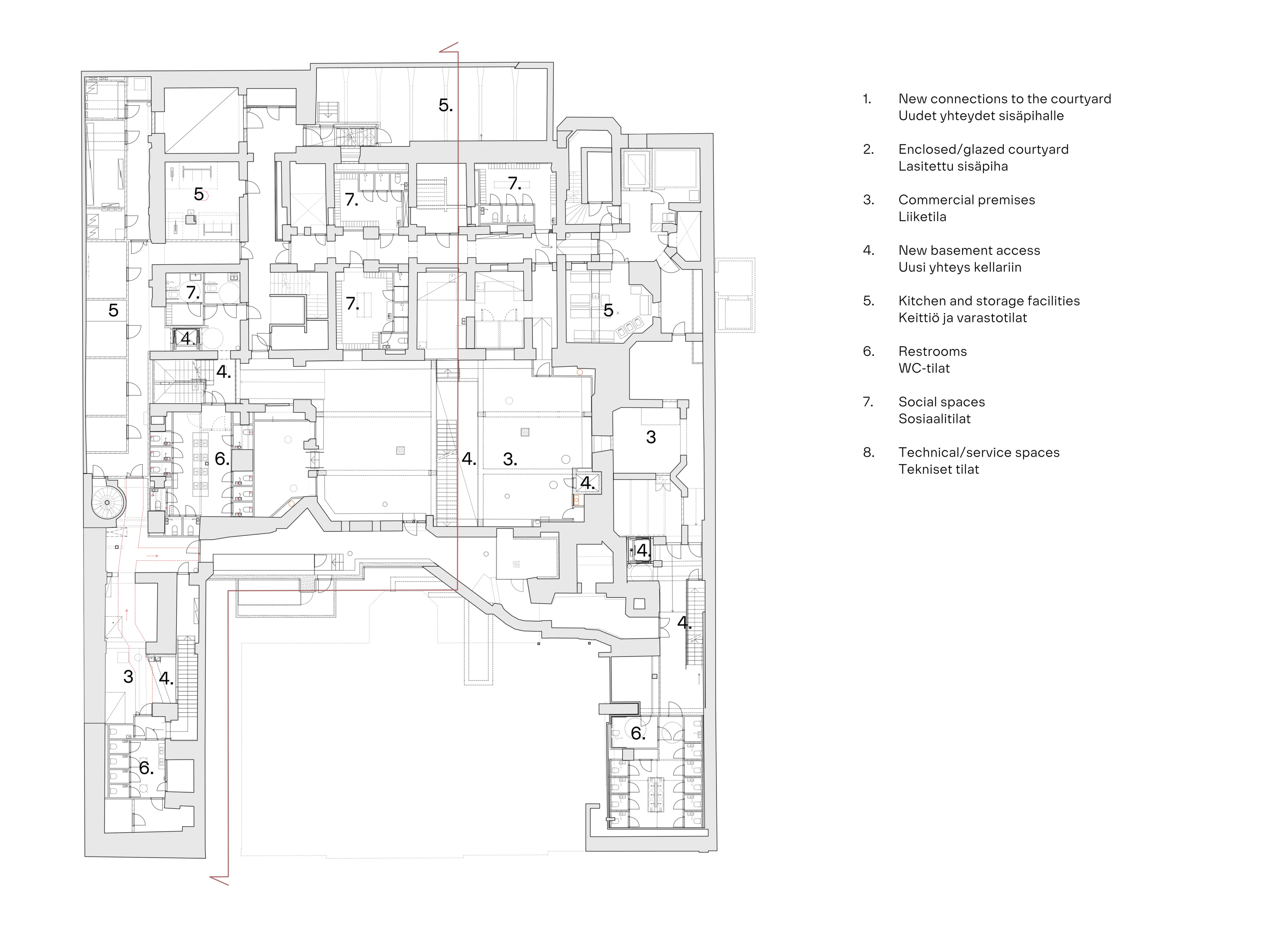
Huolellisella korjaus- ja täydennysrakentamisella parannetaan arvorakennuksen toiminnallisuutta ja houkuttelevuutta huippusijainnilla. Laadukkaan peruskorjauksen yhteydessä alimpiin kerroksiin toteutetaan merkittäviä tilamuutoksia, joihin sijoitetaan pääosin ravintolatoimintaa.
Rakennuksen keskellä olevan sisäpihan muodonmuutos on hyvin keskeinen. Entinen pysäköintialue muutetaan veistoksellisen lasikaton alla sijaitsevaksi lämpimäksi sisätilaksi. Neljän suurikokoisen, luonnonmuodoista inspiroituneen teräsristikkopilarin kannattelema lasikate luo keveän vastapainon jykeville kiviseinille.
Katutason lisäksi myös kellarikerrokseen sijoitetaan uutta liike- ja ravintolatilaa. Kellariin avautuu uusi kulkureitti sisäpihan keskeltä, ja siellä rouheat vanhat tiiliseinät ja holvit luovat ainutlaatuisen tunnelman. Katetulle sisäpihalle johtavat porttikäytävät muuntuvat osaksi uutta lämmintä sisätilaa. Messinkiverhoiltu käytävä Esplanadilta kutsuu ohikulkijoita astumaan sisään kaupunkitilaan, joka sykkii elämää aamusta iltaan kaikkina vuodenaikoina.
Alkuperäissuunnitelma: Rakennuksen vanhimman osan suunnitteli Carl Ludvig Engelin poika, Carl Alexander Engel, ja kaksikerroksinen empirerakennus valmistui vuonna 1839.
Suojelu: Kuuluu Museoviraston määrittämään valtakunnallisesti arvokkaaseen rakennettuun kulttuuriympäristöön (RKY) Esplanadi-Bulevardi Helsingin keskustassa.
Museoviranomainen: Museovirasto
Rakennustoimenpide: Perusparannus, restaurointi, täydennys



















