SKiB-kampus
SKiB-kampus on Porin ruotsinkielisen kulttuurisäätiön vuonna 2021 käynnistämä hanke, joka kokoaa yhteen opetuksen, kulttuurin ja yhteisölliset palvelut. Kampuksen tavoitteena on kehittää säätiön toimintaa ja avautua vahvemmin osaksi kaupunkia, tukien monikielisyyttä, elinikäistä oppimista ja yhteisöllistä kaupunkielämää.
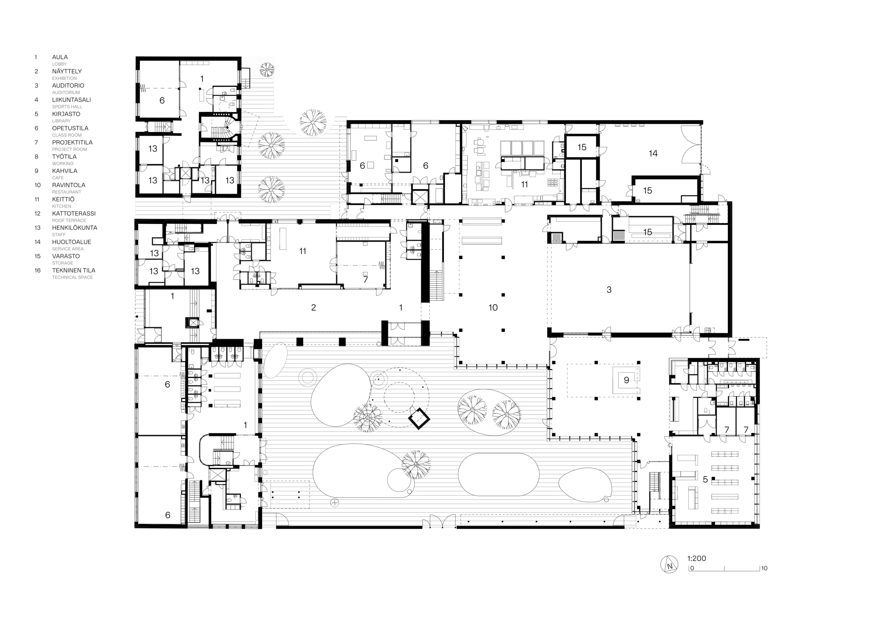
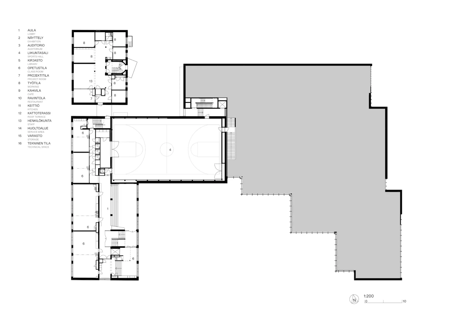
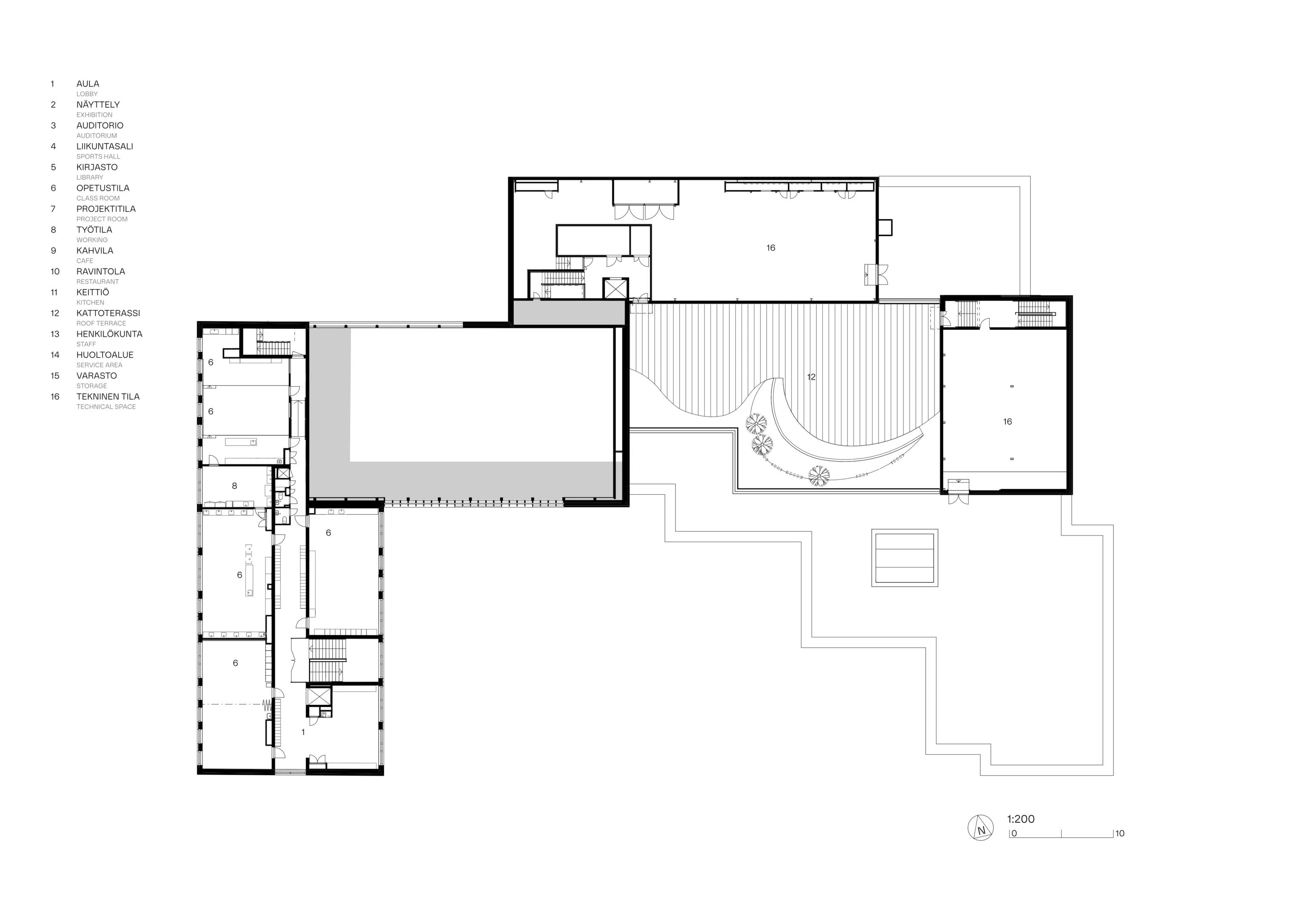
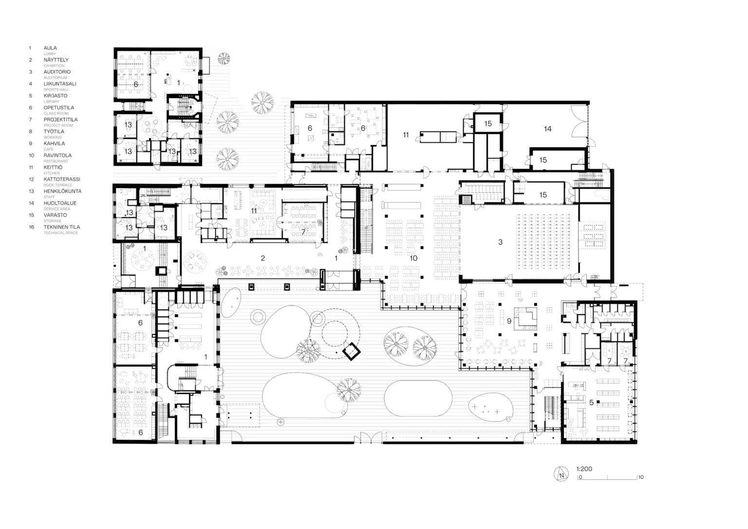
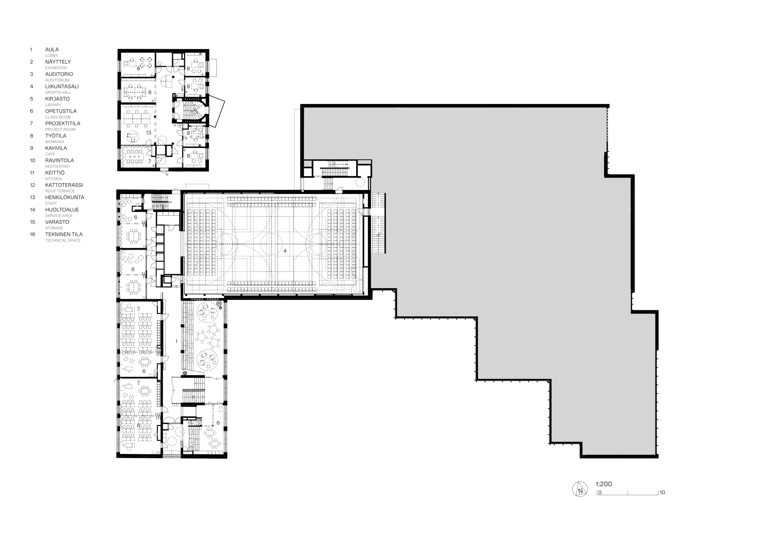
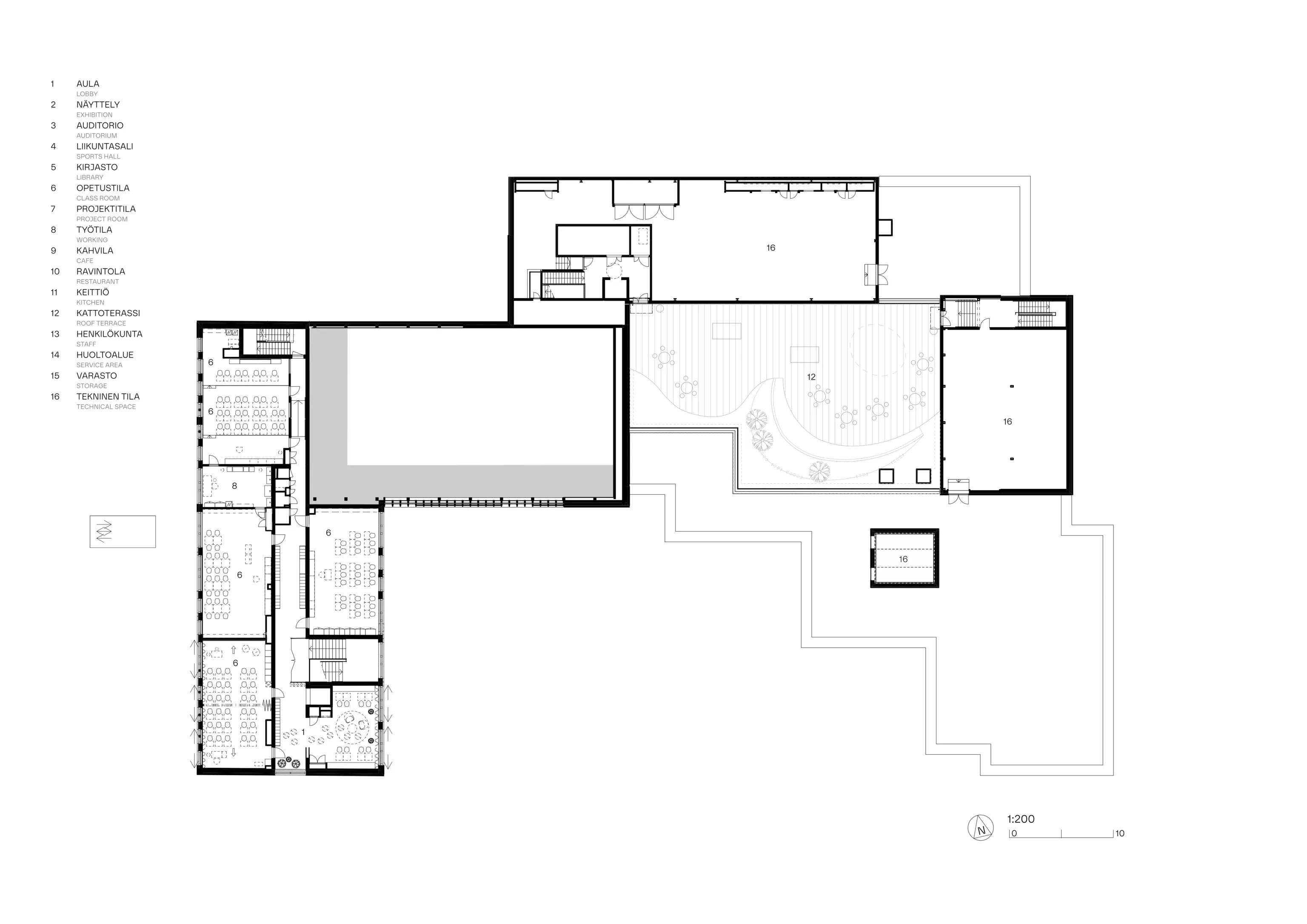
Hankkeessa peruskorjattiin Porin kansallisen kaupunkipuiston yhteydessä sijaitseva 1960-luvun tiilikoulu ja 1930-luvun Rosa Huset – molemmat suojeltuja rakennuksia. Kokonaisuutta täydentää uusi, pääosin puurakenteinen laajennusosa, joka yhdistää rakennukset tiiviiksi kaupunkikortteliksi. Yli 10 000 brm² kokonaisuus palvelee yhtenäiskoulua esikoulusta lukioon sekä päiväkodin, seniorikeskuksen ja säätiön hallinnon tarpeita.
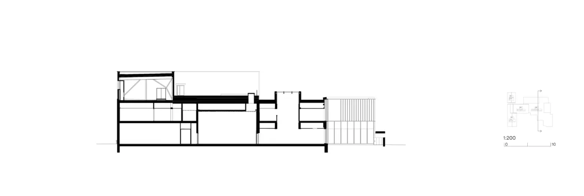
Laajennusosassa toimiva Kulturhuset Fiini tuo kampukselle monitoimisalin, ravintolan, kahvilan, kirjaston ja kokoontumistiloja, jotka ovat myös kaupunkilaisten käytössä. Opetuksen ja kulttuurin tilat limittyvät joustavasti, ja suunnittelua ohjasi tiivis yhteistyö käyttäjien kanssa. Arkkitehtuuri rakentuu tiilen, pronssin ja puun vuoropuhelulle, ja sisätiloja rytmittävät liimapuurunko, luonnonmateriaalit sekä eri aikakausia yhdistävät tunnelmalliset tilasarjat.
Valmis kampus on hybridirakennus, joka luo yhteisiä tiloja oppimiselle, taiteelle ja tapahtumille yli sukupolvien. Taide on integroitu osaksi kokonaisuutta säätiön omasta kokoelmasta sekä uusina teoksina, kuten Milla Vaahteran lasitaide, Laura Mertzin muraalit ja veistokset sekä Tytti Arolan muuntuva ääniteos. Rakennus toteutetaan energiatehokkaana ja kestävänä, hyödyntäen maalämpöä ja aurinkoenergiaa sekä pitkäikäisiä, korjattavia materiaaleja.
































