Viikin palvelutalo
Viikin palvelutalokokonaisuus perustuu Helsingin kaupungin ja seurakuntayhtymän vuonna 2000 järjestämään kutsukilpailuun. Voittanut ehdotus muodosti palvelutalosta, kirkosta ja nuorisotalosta yhtenäisen, muurimaisen kokonaisuuden. Toteutunut rakennus jatkaa tätä kaupunkikuvallista ideaa: kaksi–neljäkerroksiset massat sijoittuvat vaaleiden tiilimuurien väliin ja avautuvat puiston suuntaan suojaisien sisäpihojen kautta.
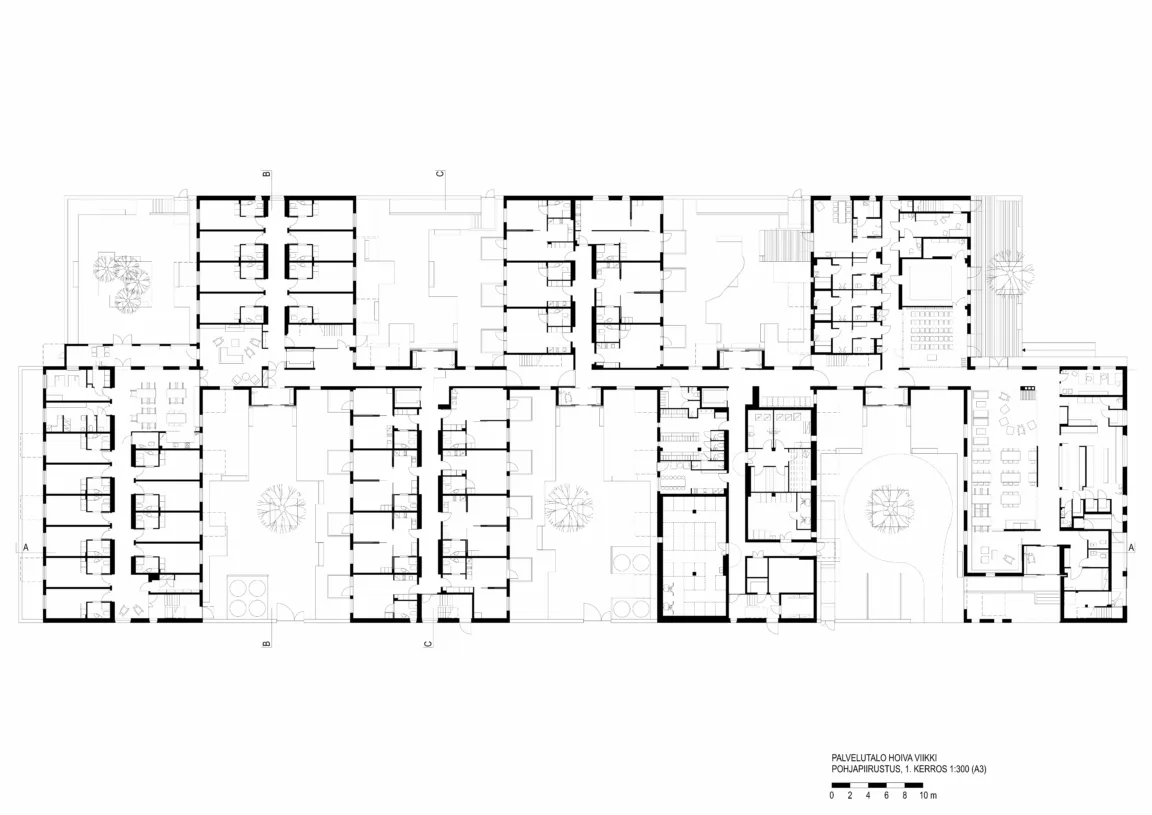
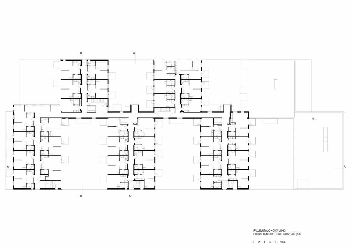
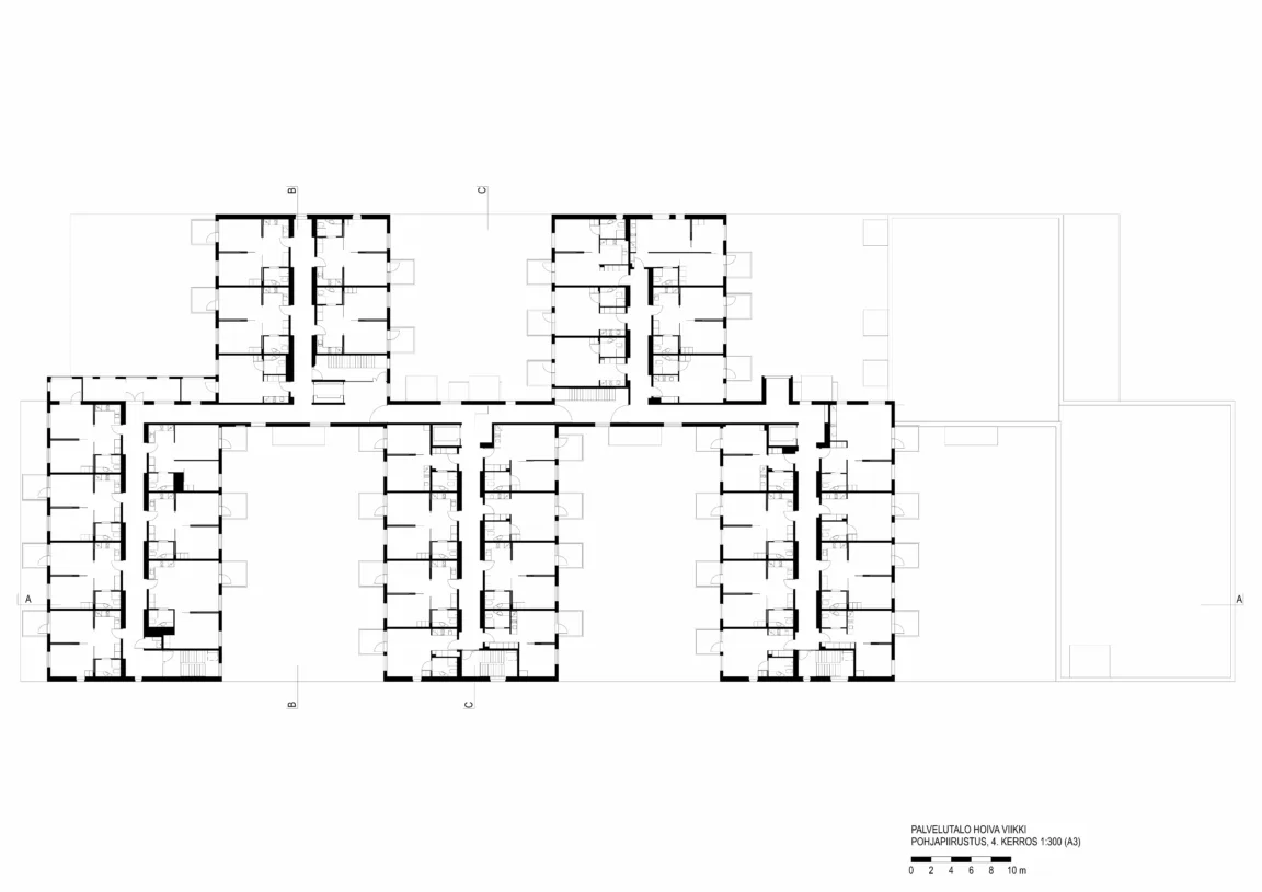
Hankkeen tilaohjelma tarkentui vuosien aikana, ja lopullinen kokonaisuus sisältää 109 palveluasuntoa sekä kaksi ryhmäkotia. Rakennus koostuu viidestä asuntomassasta ja kahdesta matalammasta palvelu- ja yhteistilojen osasta, jotka on yhdistetty sisäisillä käytävillä. Ratkaisu selkeyttää orientaatiota ja tehostaa palveluiden liikkumista.
Arkkitehtonisena tavoitteena on ollut luoda inhimillinen, esteetön ja muuntojoustava asuinympäristö. Asunnot ja yhteiset tilat tukevat erilaisia hoivan tarpeita, ja tilarakenteet mahdollistavat palveluasumisen joustavan muuttamisen tehostetuksi palveluasumiseksi. Asuntojen sisäinen muuntelu tukee eri kuntoisten ihmisten mahdollisuutta asua omassa kodissaan mahdollisimman pitkään. Selkeä jäsentely, luonnonvalo ja rauhalliset näkymät vahvistavat kodinomaista tunnelmaa.
Materiaalivalinnat tukevat kokonaisuuden identiteettiä. Vaalea tiilijulkisivu on ajaton, kestävä ja vaatii vähän huoltoa. Sisäpihoissa käytetyt erisävyiset rappaukset tuovat lämpöä, erottavat pihat toisistaan ja auttavat orientoitumisessa. Kevyet lasitetut parvekkeet pehmentävät selkeää massoittelua ja säilyttävät näkymät maisemaan. Sisätilojen hallitut väriakentät vahvistavat tilojen identiteettiä ja helpottavat arjen suunnistamista.
























