Metallum
Protected Modernism Reworked
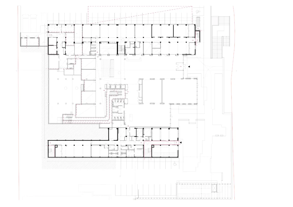
Metallum is a large-scale project of preservative infill development in Otaniemi, Espoo, transforming two protected early-1970s former VTT research buildings into a new headquarter campus for RELEX Solutions, scheduled to open in early 2027. The project combines extensive refurbishment, selective demolition and substantial new construction within a nationally significant built cultural environment shaped by Alvar Aalto’s original campus plan, the redevelopment of Otaniementie and the arrival of the tram.
The existing three-storey red brick buildings are protected under the local plan (sr-2). The design strategy preserves the architectural character of the original horizontal brick façades, restrained detailing and robust structural logic, while later additions that compromise the original composition are removed. The 1980s extension “Koehalli 2” is demolished in full, and the former central core between the retained structures is surgically removed to make way for a new six-storey volume, enabling future flexibility and contemporary use.
Of the total approximately 18,500 m², around 4,700 m² of the original structures are retained and refurbished, while approximately 15,000 m² consists of new construction, carefully integrated with the existing frames. The new building is connected to the preserved structures with millimetre-level precision, forming a coherent ensemble where old and new remain clearly legible.
The project has progressed from demolition and enabling works into active construction. Selective demolition and hazardous material removal have been completed, and the retained structures have been stabilised and stripped back to their original frames. New construction is underway and approaching its final height, while refurbishment of the protected buildings proceeds in parallel with the installation of new building systems, upgraded façades and improved energy performance.
Upon completion, Metallum will provide high-quality office and commercial space, including street-level retail, a grocery store, restaurant services and underground parking. The project targets LEED Platinum and WELL Platinum certifications, supporting ambitious environmental performance, user wellbeing and long-term sustainability goals.
























