EriCa Green Chemistry Park
EriCa Green Chemistry Park in the Finnoo district of Espoo, Finland, is a pioneering hub for green chemistry innovation and sustainable development. The aim has been to create a state-of-the-art research and business environment that brings together industry leaders, startups, and research institutions.
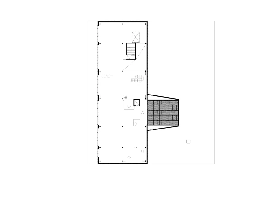
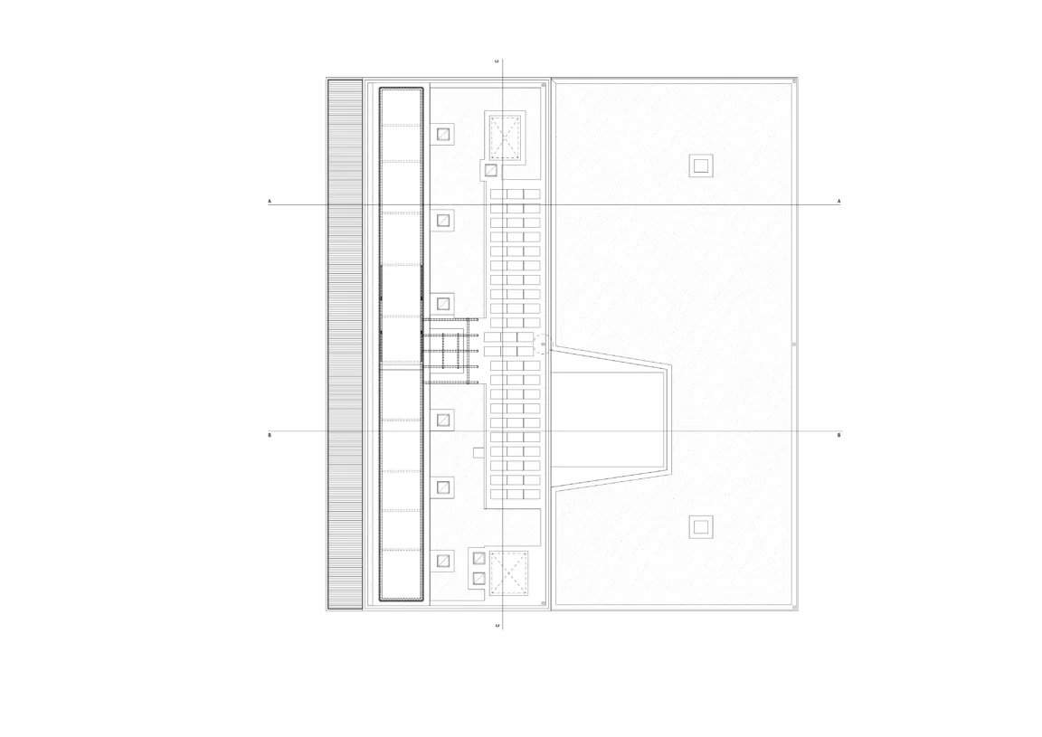
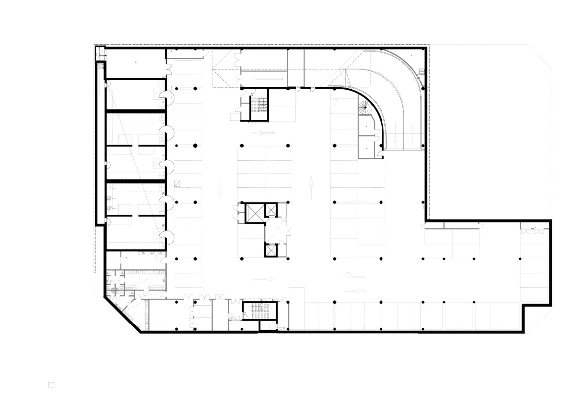
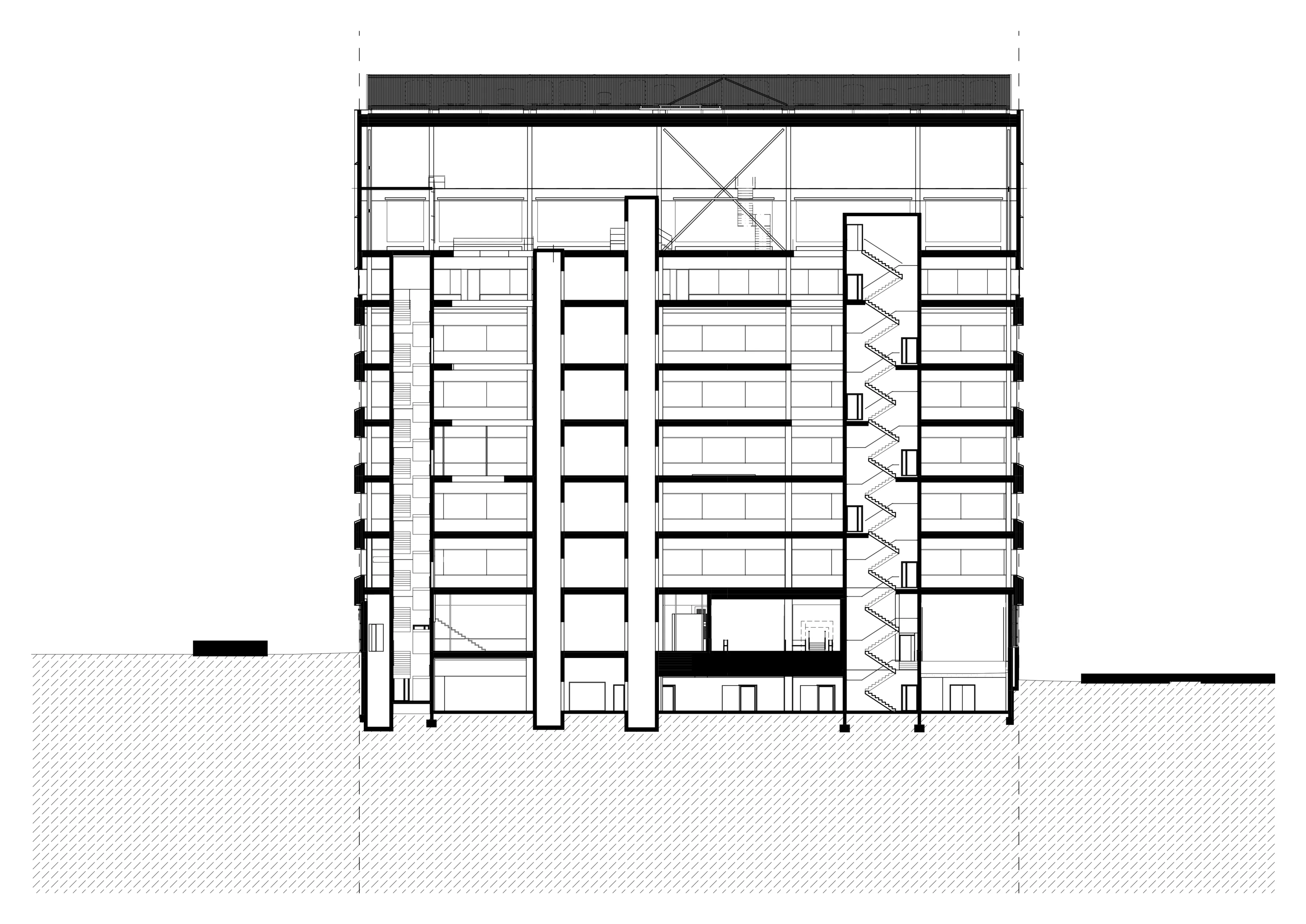
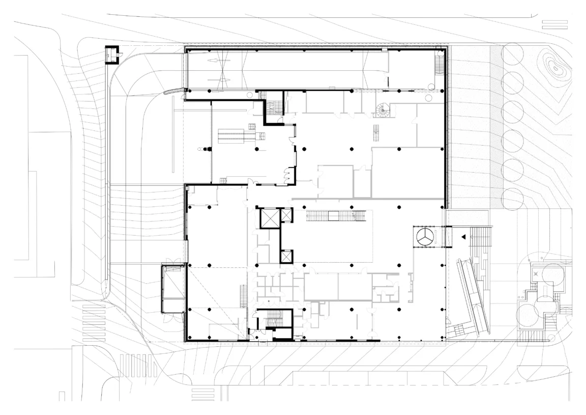
The contemporary research and office facility is designed with an emphasis on safety, clarity, functionality, and sustainability. Clear architectural lines, abundant natural light, and adaptable interiors create an environment that supports research, collaboration, and well-being. Its rectilinear form is defined by horizontal bands of glazing and textile-like precast concrete elements, producing a distinctive façade texture and a strong horizontal rhythm. A contrasting upper volume houses technical functions and reinforces the building’s identity. Energy-efficient systems and durable materials underpin long-term sustainability, while the design ensures adaptability to the evolving needs of science and industry as part of the wider Green Chemistry Park.
The facility spans 21,150 m², including over 10,000 m² of laboratories, around 2,500 m² of offices with 1,000 m² of coworking spaces, and a 400 m² conference center. All spaces are designed to be flexible and adaptable. The project has achieved a BREEAM “Very Good” rating at the design stage, with higher certification expected upon completion. Construction began in spring 2023 and was completed in September 2025. Kemira will be the main tenant.
Designed by JKMM Architects, the project was developed jointly by A. Ahlström, Kirkon Eläkerahasto, and Aktia Life Insurance Ltd, and financed in part by the Nordic Investment Bank. EriCa Green Chemistry Park provides an inspiring environment for the pioneers of green chemistry and sets a model for future developments in the field.
































